2442 Cross StreetLa Crescenta, CA 91214




Mortgage Calculator
Monthly Payment (Est.)
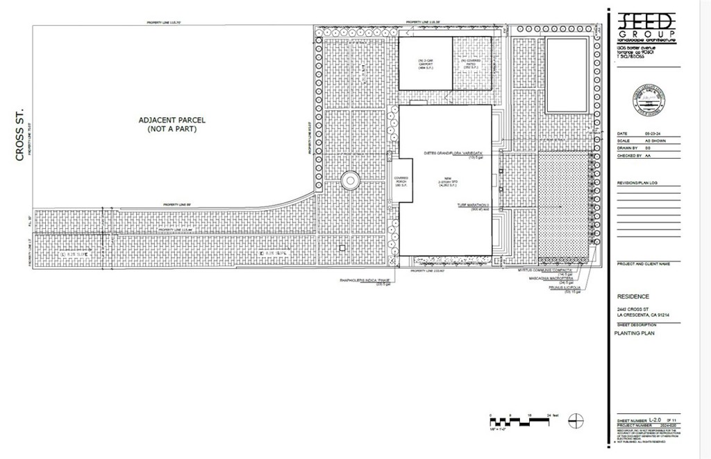
$5,931Prime La Crescenta development opportunity! Vacant land offered with approved plans for a 4,260 sq ft custom home, including garage, patio, pool, grading, and retaining walls. Plans have completed plan check and are ready for permit issuance once remaining standard fees and permit extensions are paid. Permit extensions are available and will carry approvals into Spring 2026 (final extension period). Start with grading and retaining wall permits, then proceed with home construction after inspection approval. A great chance to save months of design and review time and build in a sought-after La Crescenta location.
| a month ago | Listing first seen on site | |
| a month ago | Listing updated with changes from the MLS® |
This information is for your personal, non-commercial use and may not be used for any purpose other than to identify prospective properties you may be interested in purchasing. The display of MLS data is usually deemed reliable but is NOT guaranteed accurate by the MLS. Buyers are responsible for verifying the accuracy of all information and should investigate the data themselves or retain appropriate professionals. Information from sources other than the Listing Agent may have been included in the MLS data. Unless otherwise specified in writing, the Broker/Agent has not and will not verify any information obtained from other sources. The Broker/Agent providing the information contained herein may or may not have been the Listing and/or Selling Agent.
Did you know? You can invite friends and family to your search. They can join your search, rate and discuss listings with you.