3700 Lowry RoadLos Angeles, CA 90027




Mortgage Calculator
Monthly Payment (Est.)
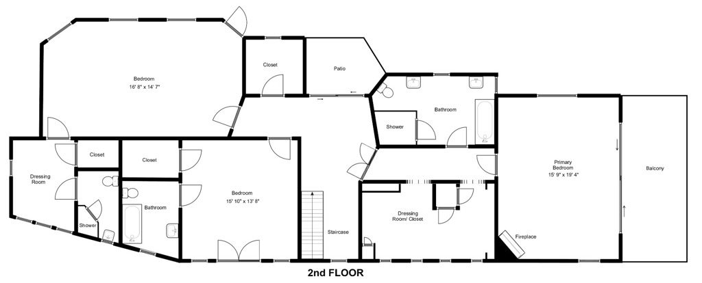
$25,070Craving a storied Los Feliz home with nearly 5,000 sq ft, panoramic views, and a legacy tied to LA's early social scene? The W.W. Hook Estate on Lowry Rd delivers a rare blend of history, refinement, and contemporary updates, set on a 16,068 sq ft corner lot where classic architecture meets modern comfort! Feel the presence of a bygone era as you approach, going back to when William W. Hook, a 1920's transportation figure and equestrian enthusiast, hosted Southern California's elite. Stunning tilework frames the wooden front door, welcoming you into a foyer where original hardwood floors and Venetian plaster walls set a rich tone. Graceful archways and vintage ironwork guide you throughout, while a Magnesite staircase adds a distinctive structural element.Imagine sunlight pouring into the oversized living room, where a Bachelder tiled fireplace becomes the natural gathering point for evenings that are relaxed, yet elevated. The dining room, breakfast nook, and den each capture light through beautifully crafted wood windows, creating a warm flow throughout the main level. Prepare meals in the fully remodeled kitchen designed to inspire, complete with modern appliances, a center island, a decorative backsplash, and a walk-in pantry. Abundant cabinetry provides both function and style, making everyday chores feel effortless. Four generous bedrooms offer striking perspectives, each with its own ensuite adorned in distinctive Spanish tilework. Your primary suite invites serene repose with a fireplace, a private dressing room, and a bath featuring dual pedestal sinks. Double French doors open to an overlooking balcony where your gaze stretches across a nearby golf course all the way to the San Gabriel Mountains.On the lower level, a junior suite with a separate entrance creates flexibility for overnight visitors, hobbies, or extended stays. Outside, the lush grounds unfold into a secluded retreat with uninterrupted scenes of Griffith Park and the Tregnan Golf Academy. An infinity-edge pool and spa, koi pond, three waterfalls, and a picturesque bridge with seating platforms present a setting that feels like a remote resort. Mature oak trees, rose bushes, and fruit-bearing varieties, including orange, pomegranate, grape, loquat, and persimmon, enrich the landscape.Upgraded systems include A/C, electrical, and plumbing, bringing you peace of mind, along with a laundry room, attached 2-car garage, and gated driveway. Positioned near I-5, Atwater Village shops, and within easy reach of Glendale, Burbank, downtown LA, and the Sunset Strip, this location balances accessibility with escape. Come discover an opportunity to experience something exceptional!
| 22 hours ago | Listing updated with changes from the MLS® | |
| yesterday | Listing first seen on site |
Based on information from the The MLS as of 2026-04-27 11:18 PM UTC. All data, including all measurements and calculations of area, is obtained from various sources and has not been, and will not be, verified by broker or MLS. All information should be independently reviewed and verified for accuracy. Properties may or may not be listed by the office/agent presenting the information.
Did you know? You can invite friends and family to your search. They can join your search, rate and discuss listings with you.