14667 W Sara LanePanorama City, CA 91402




Mortgage Calculator
Monthly Payment (Est.)
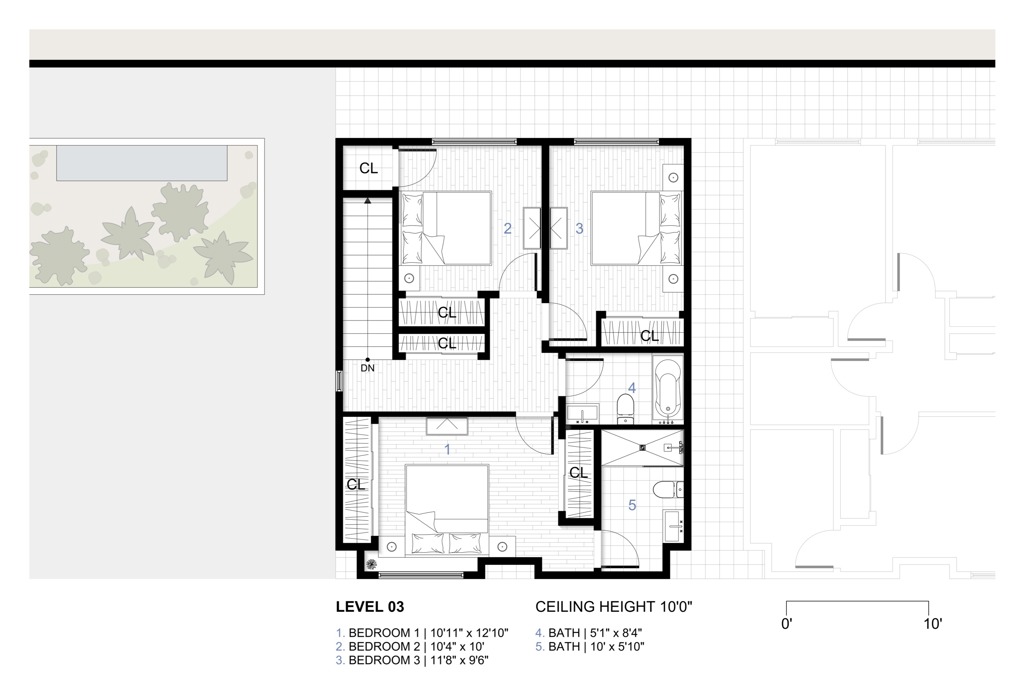
$3,417Lock in an INTEREST RATE in the 3's w/ a SELLER PAID 3-2-1 RATE BUYDOWN!! Recently built home in a gated community of 14 single family homes. This home features a dramatic, open-concept, tri-level floor plan with a contemporary style, located within a central Los Angeles location. Offering 3 bedrooms, 3 bathrooms plus a den, with an attached 2 car garage, the home is adorned w/ bespoke finishes, vinyl plank flooring, modern fixtures and modern appliance packages. As an added convenience, the home is pre-wired with Cat5 internet cable as well as pre-run conduit for EV car charging and future solar. Representing a rare and "last frontier" opportunity for buyers to achieve home ownership at an affordable price, this is a development you do not want to miss!
| yesterday | Listing updated with changes from the MLS® | |
| yesterday | Listing first seen on site |
Based on information from the The MLS as of 2025-11-16 12:01 PM UTC. All data, including all measurements and calculations of area, is obtained from various sources and has not been, and will not be, verified by broker or MLS. All information should be independently reviewed and verified for accuracy. Properties may or may not be listed by the office/agent presenting the information.
Did you know? You can invite friends and family to your search. They can join your search, rate and discuss listings with you.