145 N Toluca StreetLos Angeles, CA 90026




Mortgage Calculator
Monthly Payment (Est.)
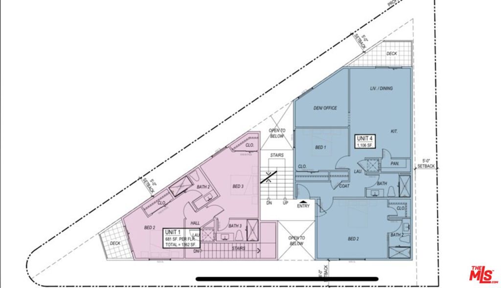
$6,383RTI 5-Unit Development Opportunity with City Views | Echo ParkProperty Overview:Rare RTI (Ready-To-Issue) opportunity in the heart of Echo Parkone of Los Angeles' most sought-after and fastest-growing neighborhoods. Approved plans call for a 5-unit multifamily project, including a mix of modern layouts designed to capture natural light, maximize rentable space, and showcase breathtaking views of the Downtown Los Angeles skyline.Approved Plans Include:Total Units: 5 (including one ADU)Unit Mix:(3) One-Bedroom Units (one is the ADU)(1) Two-Bedroom Unit(1) Three-Bedroom UnitThoughtful architectural design with open-concept interiors and private outdoor spacesEfficient layouts ideal for the Echo Park rental or resale marketHighlights:RTI permits in hand start construction immediatelySpectacular skyline views from multiple unitsPrime Echo Park location minutes to Downtown LA, Silver Lake, and Dodger StadiumStrong rental demand and excellent long-term appreciation potentialPerfect for developers, investors, or 1031 exchange buyersInvestment Summary:Why wait years for entitlements? This project is ready to build today, saving valuable time and costs. Located on a quiet street surrounded by ongoing redevelopment, 145 N Toluca St offers an ideal balance of proximity to city life and hillside tranquility. With Echo Park's continued growth, this project promises strong upside as either a build-and-hold income property or resale investment.
| 4 hours ago | Listing updated with changes from the MLS® | |
| 12 hours ago | Price changed to $1,399,000 | |
| 15 hours ago | Listing first seen on site | 
Based on information from the The MLS as of 2025-11-04 03:27 AM UTC. All data, including all measurements and calculations of area, is obtained from various sources and has not been, and will not be, verified by broker or MLS. All information should be independently reviewed and verified for accuracy. Properties may or may not be listed by the office/agent presenting the information.
								
Did you know? You can invite friends and family to your search. They can join your search, rate and discuss listings with you.