4266 Grand View BoulevardLos Angeles, CA 90066




Mortgage Calculator
Monthly Payment (Est.)
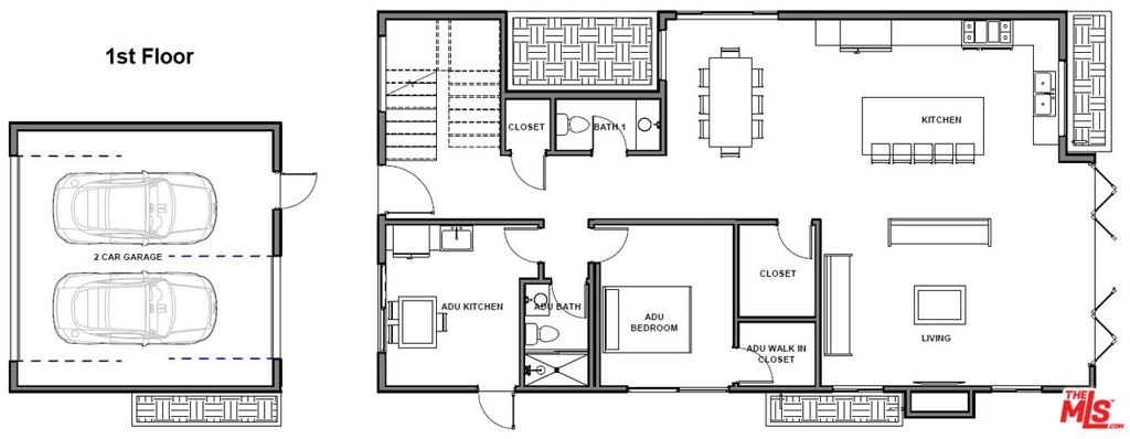
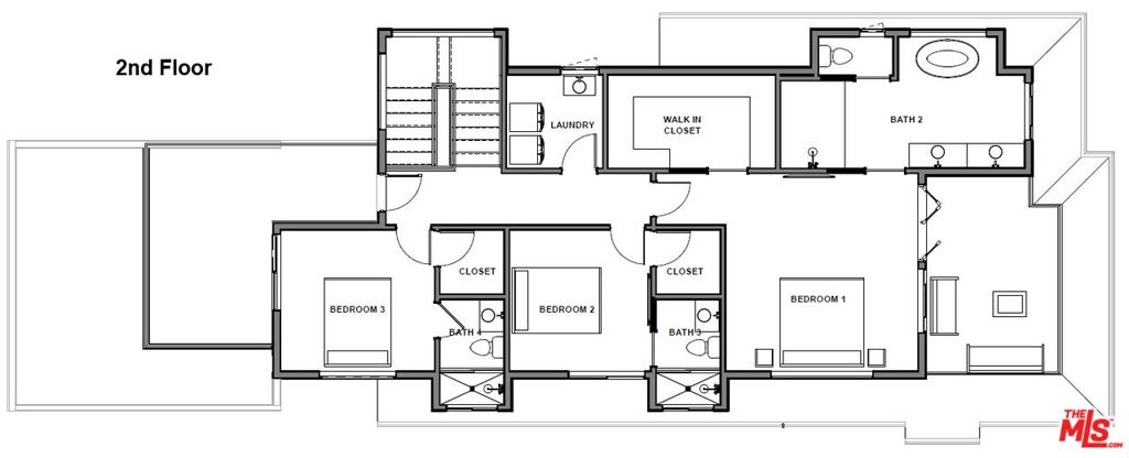
$13,619Stunning New Construction 4-Bedroom plus Office (5th Bedroom) Home, currently under construction in Mar Vista! Scheduled for completion December 2025. This luxurious, high-end residence blends contemporary design with the comfort and sophistication of modern living. Situated on a spacious lot, this home boasts an open-concept layout with expansive windows, allowing natural light to flood every corner of the space. The chef's kitchen features top-of-the-line appliances, sleek cabinetry, and a large island perfect for entertaining. The spacious living and dining areas flow seamlessly, leading to a private backyard oasis. The flexible design offers a first floor suite that can be closed and used as a separate apartment with its own kitchenette and private entrance, or opened to be used as a private office and private guest suite. With three bedrooms & 3 bathrooms upstairs including an incredible primary suite with a retreat-like atmosphere with a spa-inspired bathroom, custom walk-in closets, and private balcony. Each additional bedroom is generously sized with high-end finishes and ample closet space and their own en-suite bathrooms. The detached garage would make a great gym or art studio. With impeccable attention to detail, this Mar Vista gem offers the perfect blend of comfort, style and sophistication.
| 7 hours ago | Listing updated with changes from the MLS® | |
| 15 hours ago | Listing first seen on site | 
Based on information from the The MLS as of 2025-11-04 07:41 AM UTC. All data, including all measurements and calculations of area, is obtained from various sources and has not been, and will not be, verified by broker or MLS. All information should be independently reviewed and verified for accuracy. Properties may or may not be listed by the office/agent presenting the information.
								
Did you know? You can invite friends and family to your search. They can join your search, rate and discuss listings with you.